Espace propriétaire
fr

Votre recherche

Prix en baisse
Genlis (21110)

3 pièces - 110 m²

GENLIS: JOLIE MAISON AVEC DÉPENDANCE

189 000 €
Ref : 1054-03
A propos de ce bien

Située au cœur de la commune de Genlis, cette maison offre un beau potentiel après travaux de rafraîchissement.

Elle se compose d’une pièce de vie lumineuse, de 2 chambres, d’une salle de douche avec WC ainsi que d’un grand studio indépendant, idéal pour accueillir un proche ou envisager un revenu locatif.

Un double garage vient compléter le bien.
Le chauffage est assuré par des convecteurs électriques et une climatisation réversible.

Des travaux de rafraîchissement sont à prévoir, mais l’emplacement central et la configuration offrent de belles perspectives d’aménagement.

Atouts :

  • Centre de Genlis, à proximité des commerces et services

  • Studio indépendant avec accès séparé

  • Double garage spacieux

Une opportunité à saisir pour qui recherche un bien à personnaliser selon ses envies.

Parcelle de 443 m² clos de murs. DPE E.

Prix : 189 000 € HAI (honoraires à la charge du vendeur).

Mandat n°1113

Les informations sur les risques auxquels ce bien est exposé sont disponibles sur le site Géorisques : www.georisques.gouv.fr


Pour davantage de renseignements :

Franck CLARENÇON au 06.72.78.66.81
Agence PAULIMMO

Descriptif de ce bien
Général
Code postal 21110
Surface habitable (m²) 110 m²
surface terrain 443 m²
Surface loi Carrez (m²) 110 m²
Nombre de chambre(s) 2
Nombre de pièces 3
Nombre de niveaux 1
Détails
Nb de salle de bains 1
Cuisine Séparée
Mode de chauffage Electrique
Type de chauffage Air pulsé
Format de chauffage Central
Interphone NON
Visiophone NON
Terrasse OUI
Nombre de garage 2
Année de construction 1970
Terrain arboré OUI
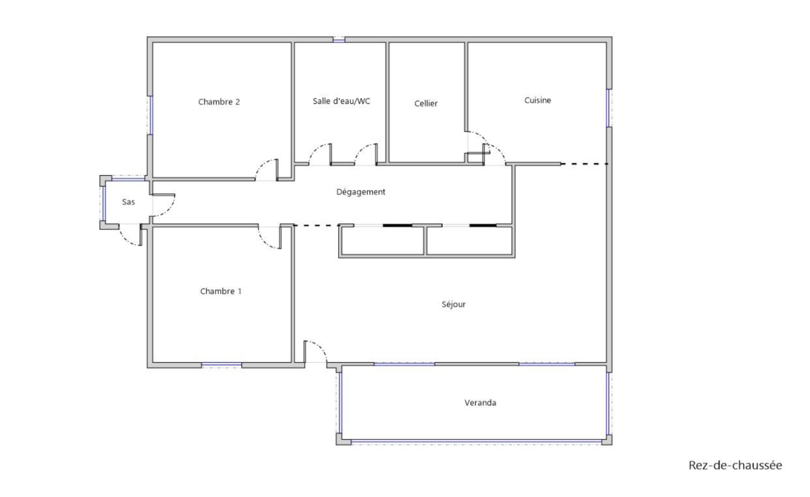
Composition
Rez de chaussée
entrée 5.76 m²

salon/sejour 22.97 m²

cuisine 9.47 m²

chambre 13.05 m²

chambre 13.02 m²

salle de bain 4 m²

WC 1.54 m²

cellier 5.07 m²

Financier
Prix de vente honoraires TTC inclus 189 000 €
Energie
DPE GES
Contacter pour ce bien
L'agence
Téléphone 09 86 25 51 11
Adresse
22 boulevard de la tremouille 21000 Dijon

* Champ obligatoire

Les informations recueillies sur ce formulaire sont enregistrées dans un fichier informatisé par La Boite Immo agissant comme Sous-traitant du traitement pour la gestion de la clientèle/prospects de l'Agence / du Réseau qui reste Responsable du Traitement de vos Données personnelles.
La base légale du traitement repose sur l’intérêt légitime de l'Agence / du Réseau.
Elles sont conservées jusqu'à demande de suppression et sont destinées à l'Agence / au Réseau.
Conformément à la loi « informatique et libertés », vous pouvez exercer votre droit d'accès aux données vous concernant et les faire rectifier en contactant l'Agence / le Réseau.
Si vous estimez, après avoir contacté l'Agence / le Réseau, que vos droits « Informatique et Libertés » ne sont pas respectés, vous pouvez adresser une réclamation à la CNIL.
Nous vous informons de l’existence de la liste d'opposition au démarchage téléphonique « Bloctel », sur laquelle vous pouvez vous inscrire ici : https://www.bloctel.gouv.fr 
Dans le cadre de la protection des Données personnelles, nous vous invitons à ne pas inscrire de Données sensibles dans le champ de saisie libre
Ce site est protégé par reCAPTCHA, les Politiques de Confidentialité et les Conditions d'Utilisation de Google s'appliquent.

Découvrir nos outils